Dedicato alla storia del Complesso monumentale SanPaolo

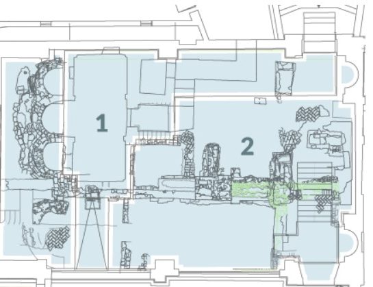
Il percorso 2 è dedicato alla storia del Complesso monumentale San Paolo. La visita si snoda dall’area soprastante gli scavi della chiesa medievale alla cripta di San Savino

La chiesa di San Paolo, oggi adibita a complesso museale, sorge al centro di Monselice ed è da ritenersi uno degli edifici sacri più antichi della città.

Le vicende architettoniche che l’hanno caratterizzata risultano assai complesse; gli scavi archeologici eseguiti a più riprese a partire dal 1985, sia all’interno che all’esterno dell’edificio, hanno messo in luce le strutture originarie e hanno consentito di ricostruire le sue diverse fasi evolutive.

La chiesa medievale

800- 1400

La chiesa tra rinascimento ed età moderna

1470-1709

La chiesa oggi e i progetti di recupero

1956-2009

Affreschi e dipinti

1250 al 1470

Storie di Santi: San Sabino, San Francesco e San Paolo

1115-1631

Gli scavi dentro e fuori la chiesa

1985

Monselice e le sue chiese

dal 1000

Le fasi della Chiesa dal 750 a.c. ad oggi

1° fase (750-800 circa)

2° fase (1000 circa)

3° fase (1150-1200 circa)

4° fase (1250 circa)

5° fase (1470 circa)

6° fase (fine 1500-1602 circa)